- Woonoppervlakte
- Circa 132 m²
- Perceeloppervlakte
- Circa 167 m²
- Bouwjaar
- Gebouwd in 1967
- Aantal kamers
- 7 kamers (4 slaapkamers)
Op korte afstand van het stadscentrum, in de wijk Oostwijken, staat deze riante TUSSENWONING met een beschutte tuin en houten berging. Deze gezinswoning beschikt over een ruime woonkamer met moderne open keuken, maar liefst 4 slaapkamers en een grote zolderberging. De woning is uitstekend onderhouden en volledig voorzien van kunststofkozijnen. De ruime indeling van de woning en de moderne afwerking springen direct in het oog. Oorspronkelijk bouwjaar 1967 en grotendeels gerenoveerd, perceelgrootte 167 m²
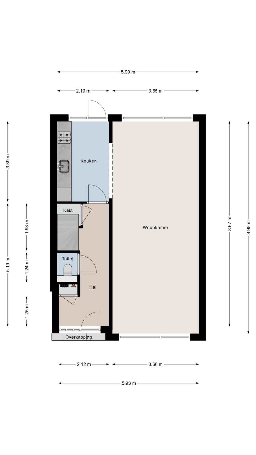
INDELING WONING:
Entree, hal met trapopgang en toiletruimte met wandcloset, mooie lichte woonkamer met fraaie donkere laminaatvloer, moderne open keuken met donker betonlook aanrechtblad, diverse inbouwapparaten en een provisiekast. Via de achterdeur toegang tot het aangelegde terras en de achtertuin. Aan de achtergevel bevindt zich een luxe zonnescherm, ideaal voor de warme zomerdagen. Aan de voorzijde is tevens een screen geplaatst.
1e Verdieping: Overloop, 4 slaapkamers, moderne badkamer (2023) voorzien van een douche, wandcloset en wastafelmeubel. Op deze verdieping zijn screens geplaatst, wat zorgt voor extra comfort tijdens warme dagen.
2e verdieping: ruime bergzolder met witgoed aansluitingen en opstelplaats voor CV ketel (2021). Het realiseren van een extra 5e slaapkamer behoort tot de mogelijkheden.
ALGEMEEN:
Deze verrassend ruime woning is volledig voorzien van kunststof kozijnen met dubbele HR ++ beglazing (2012) zowel binnen als buiten zeer goed onderhouden en wordt centraal verwarmd middels radiatoren. In 2013 zijn de spouwmuren geïsoleerd en de woning beschikt over energielabel B. De voor en achtertuin is met smaak aangelegd met diverse terrassen en borders. In de op het westen gesitueerde achtertuin houten berging, de achtertuin is achterom bereikbaar.
De woning is rustig gelegen aan een niet-doorgaande straat met voldoende parkeergelegenheid. In de directe omgeving bevinden zich diverse scholen, sportvoorzieningen en het stadscentrum ligt op loopafstand. Dankzij de uitstekende afwerking en nette staat is deze woning instapklaar.
Overdracht
- Vraagprijs
- € 295.000 k.k.
- Status
- Verkocht
- Aanvaarding
- In overleg
Bouw
- Object type
- Eengezinswoning, tussenwoning
- Soort bouw
- Bestaande bouw
- Bouwjaar
- 1967
- Soort dak
- Zadeldak bedekt met pannen
Oppervlakte en inhoud
- Woonoppervlakte
- 132 m²
- Perceeloppervlakte
- 167 m²
- Inhoud
- 425 m³
- Overige inpandige ruimte
- 10 m²
Indeling
- Aantal kamers
- 7 kamers (4 slaapkamers)
- Aantal badkamers
- 1 badkamer
- Badkamervoorzieningen
- Toilet, douche, wastafelmeubel
- Aantal woonlagen
- 3 woonlagen
- Voorzieningen
- Mechanische ventilatie, rolluiken, buitenzonwering, dakraam
Energie
- Energielabel
- B
- Energielabel registratie
- 07-07-2025
- Isolatie
- Dakisolatie, muurisolatie, vloerisolatie, dubbel glas
- Verwarming
- Cv-ketel
- Warm water
- Cv-ketel
- Cv ketel
- Nefit combiketel gas gestookt uit 2021 (eigendom)
Buitenruimte
- Tuin
- Achtertuin, voortuin
- Afmetingen achtertuin
- 55 m² (10 meter diep en 5.5 meter breed)
- ligging tuin
- Gelegen op het westen en en bereikbaar via achterom
Bergruimte
- Schuur / berging
- Vrijstaande houten berging
- Voorzieningen
- Voorzien van elektra
Garage
- Soort garage
- Geen garage
Parkeergelegenheid
- Soort parkeergelegenheid
- Openbaar parkeren
Energieverbruik in Steenwijk
Energielabel deze woning
Energielabel B
Publicatie energielabel: 07-07-2025
Stroomverbruik per jaar
(Gemiddelde tussenwoning in Steenwijk)
Gasverbruik per jaar
(Gemiddelde tussenwoning in Steenwijk)
* Cijfers zijn afkomstig van het CBS en bedoeld als indicatie en kunnen verschillen voor deze woning
Indicatie hypotheeklasten
Eigen inleg:
Spaargeld / overwaarde
Rente:
Laagste 10-jaars rente
Laagste 10-jaars rente
2,76% - Centraal Beheer Groen... - NHG
2,98% - Centraal Beheer Groen... - 80%
Laagste 20-jaars rente
3,19% - Centraal Beheer Groen... - NHG
3,31% - Centraal Beheer Groen... - 80%
Laagste 30-jaars rente
3,34% - Centraal Beheer Groen... - NHG
3,47% - Centraal Beheer Groen... - 80%
Hypotheek:
Bruto maandlasten: € 0 p/m
Netto maandlasten: € 0 p/m
Hoe berekenen we dit?
Het rentepercentage is gebaseerd op de laagste 10-jaars vaste rente voor één hypotheekdeel. De vermelde rente (2.76% met NHG) is gecontroleerd op 10-09-2025. Deze berekening is gebaseerd op een annuïteitenhypotheek die volledig wordt afgelost, waarbij de maandlasten gedurende de gehele looptijd gelijk blijven. De werkelijke rente en netto maandlasten kunnen variëren, afhankelijk van uw persoonlijke situatie en de hypotheekverstrekker. Raadpleeg een financieel adviseur voor een nauwkeurige berekening en advies. Aan deze berekening kunnen geen rechten worden ontleend; het dient enkel als indicatie.
Documentatie
Kadastrale kaart
Leefomgeving
Brochure
Plattegronden PDF
WOZ waarderapport
BAG uittreksel
Bekijk onze website
Bezichtiging
Bod uitbrengen
Waardebepaling
Zoekopdracht
Alles downloaden
Zonnegrenzen bekijken
Op de kaart
Inwoners in Steenwijk
Cijfers voor postcodegebied 8331
- Totaal aantal inwoners
- 10370 inwoners
- Mannen
- 49%
- Vrouwen
- 51%
Inwoners in Steenwijk
Cijfers voor postcodegebied 8331
- tot 15 jaar
- 13%
- 15 tot 25 jaar
- 11%
- 25 tot 35 jaar
- 22%
- 45 tot 65 jaar
- 27%
- 65 en ouder
- 27%
Huishoudens in Steenwijk
Cijfers voor postcodegebied 8331
- Eenpersoons zonder kinderen
- 46%
- Meerpersoons zonder kinderen
- 28%
- Huishoudens zonder kinderen
- 74%
Huishoudens in Steenwijk
Cijfers voor postcodegebied 8331
- Huishoudens met één kind
- 8%
- Huishoudens met meerdere kinderen
- 19%
- Huishoudens met kinderen
- 27%
Woningen in Steenwijk
Cijfers voor postcodegebied 8331
- Woningen voor 1945
- 23%
- Woningen tussen 1945 en 1965
- 17%
- Woningen tussen 1965 en 1975
- 12%
- Woningen tussen 1975 en 1985
- 11%
- Woningen tussen 1985 en 1995
- 11%
Woningen in Steenwijk
Cijfers voor postcodegebied 8331
- Woningen tussen 1995 en 2005
- 16%
- Woningen tussen 2005 en 2015
- 8%
- Woningen na 2015
- 1%
- Huurwoningen
- 60%
- Koopwoningen
- 40%
Overige in Steenwijk
Cijfers voor postcodegebied 8331
- Gemiddelde WOZ waarde
- € 166.000,-
- Personen onder de 65 met uitkering
- 12%
Overige in Steenwijk
Cijfers voor postcodegebied 8331
- Adressen per km²
- 1272
- Stedelijkheid (schaal 1 op 5)
- 60%
Korte feiten over Steenwijk
Steenwijk (Nedersaksisch: Steenwiek of Stienwiek) is een stad in de Nederlandse provincie Overijssel. Het is met 17.115 inwoners de grootste plaats in de gemeente Steenwijkerland en na Kampen de grootste plaats in de Kop van Overijssel.
Hét makelaarshuis van Steenwijk
Op zoek naar een makelaar?
Een huis verkopen of kopen is een belangrijke beslissing in het leven. Het is essentieel om deskundig en objectief advies te krijgen. We brengen in kaart wat u belangrijk vindt en welke wensen u heeft. Een open gesprek vormt de basis voor onze aanpak. Luisteren is een cruciaal onderdeel van ons vak! Wij taxeren de woning en adviseren u over de te hanteren vraagprijs. In overleg met u bepalen we het verkooptraject, inventariseren we de sterke en mindere punten van de woning en stellen we aanbiedingsteksten op. Nadat de fotopresentatie is gemaakt, kan de verkoop daadwerkelijk beginnen. Terwijl wij uw woning verkopen, kunt u zich richten op de volgende stap in uw leven. Aan ons de taak om een geschikte koper voor uw woning te vinden.
HetMakelaarshuis krijgt zijn meeste klanten door aanbevelingen. Waarom? Omdat wij de meest betrouwbare dienstverlening bieden aan onze relaties en zij ons waarderen om onze kennis, bevlogenheid, bereikbaarheid en de zorg en aandacht die wij aan hen besteden.
Bel ons vandaag nog en ervaar het zelf.
Nieuwste reviews
-
Oostercluft 46
Beide makelaars van het Makelaarshuis Steenwijk waren deskundig, zeer vriendelijk en toegankelijk. De heer Willemsen was zowel aankoopmakela...
-
Verlaatseweg 41
Door Edwin en Nick kregen wij een realistisch beeld van de huidige woningmarkt. De service was echt top, elke vraag die we hadden werd tot o...
-
Bakkersveld 29
De contacten met Edwin, Nick en Jan waren erg plezierig. We konden altijd bij ze terecht als we ergens even hulp bij nodig hadden of ergens...